
USD729,900
Casa en Venta, 35 SWAN LANE, LAKE HOPATCONG, Nueva Jersey 07849, Estados Unidos
- Nº De MLS3555388
- Dormitorios4
- Cuartos de baño4
- Área de la casa/del terreno
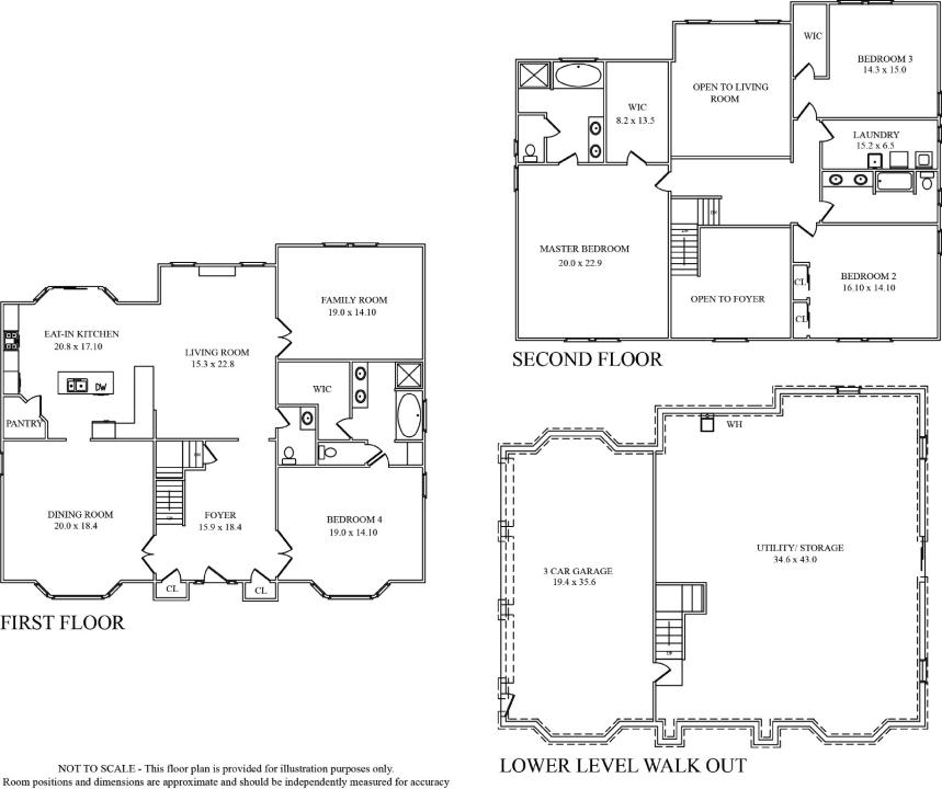
404 m² (4,354 ft²)
Listado por CENTURY 21 Geba Realty
La Inicio en Venta ubicada en 35 SWAN LANE, LAKE HOPATCONG, Nueva Jersey 07849, Estados Unidos actualmente está en venta35 SWAN LANE, LAKE HOPATCONG, Nueva Jersey 07849, Estados Unidos está listado paraUSD729,900.Esta propiedad tiene 4 dormitorios, 4 baños características.
Características de la propiedad
Propiedad
- Área de la propiedad:
404 m² (4,354 ft²) - Tipo: Centro De Esquí
- Características: DeckPatioEspacio Para DepósitoHogar
- Ubicación: Agua / Lago PrivadoCalle Sin SalidaAl Frente Del LagoEn La Costa
- Otras estructuras: Granero/cobertizo De Almacenamiento
Lote/Terreno
- Área del terreno/predio:
5,504 m² (1.36 ac) - Descripción del lote: Sistema De RiegoSistema De Riego SubterráneoArboladoLote AbiertoNivelVeredas
Construcción
- Año de construcción: 2004
- Estilo: Colonial
- Techumbre: Tejuela De Asfalto
- Construcción: De Ladrillo
- Subsuelo y cimientos: Subsuelo Completo
- Exterior: Revestimiento Vinílico
Estacionamiento/Garaje
- Espacios de estacionamiento: 10
- Descripción del garaje: Garaje Anexo
Dormitorios
- Dormitorios: 4
Cuartos de baño
- Total de baños: 4
- Baños completos: 3
- Medio baño: 1
- Detalles: DuchaBañera De Hidromasaje
Otras habitaciones
- Tipos de habitaciones: Suite Para Suegros
- Descripción de la cocina: DesayunadorMesada(s) De GranitoCocina GourmetCocina-comedorIsla
- Equipamiento: Horno/CocinaLavadoraAspiradora CentralHorno DobleMicroondasHeladeraSecadoraLavavajilla
Características interiores
- Ventanas: Claraboyas
- Pisos: Pisos De Maderas NoblesDe Baldosas
- # de estufas a leña: 1
- Descripción de la estufa a leña: A Gas
Características exteriores
- Espacios exteriores: DeckPatio
- Cocheras techadas:
Agua y acceso para lanchas
- Agua: Lago
- Navegación: Atracadero Para EmbarcacionesRampa Para Embarcaciones
Terreno recreativo
- Terreno recreativo: Yatch ClubParrilleroCanchas De BásquetbolPatio De Recreo
Seguridad
- Características: Detector De Humo
Vista
- Características: Vista Al LagoVista A Un Espejo De Agua
Calefacción y aire acondicionado
- Sistema de calefacción: ZócaloFuel-oil
- Sistema de refrigeración: Aire Acondicionado Central
Servicios públicos
- Telecomunicaciones: Sistema De Intercomunicador
- Otros servicios: Tubería De Agua MunicipalTanque De Aguas Residuales
Descripción
Located in Water Village a prestigious lakefront community. Lake Hopatcong the largest lake in New Jersey only 1 hour from NYC! A commuters dream house with easy access to all major highways, train stations and buses! Lake Hopatcong a recreation lake, with restaurants, mini golf, yacht clubs, sailing, fishing along with many water activities to enjoy all summer long and year round too.
This home has 1.36 acres a impressive shore line, a dock to for your boats, kayaks, wave runners and canoes! Throw the line in anytime right off your dock! For Winter enjoyment the frozen lake is a perfect place to ice skate with warm fire pit near by.
Custom brick Colonial is approx. 4354 sq.ft. of spaciousness! Chic and stylish decor and color tones! Notice the oil rubbed bronze hardware and gray tones, white trim, making this home so fresh and modern. The Kitchen a cooks delight, stainless steel appliances, white cabinetry, granite counter tops, sliding door to deck with gorgeous views of your private dock and lake ! Dramatic great room, soaring high ceilings and custom trim work throughout. Hardwood floors, glass french style doors, gas fireplace to cozy up to anytime! Large dining room area can host any large gathering, the perfect place to entertain! Two master suites (one downstairs, one upstairs) both with full size un suites, granite counter tops, double sinks, soaking tubs, showers, walk-in closets you only dream about! Upstairs catwalk over looks the great room floor to ceiling gas fireplace, accent wall painted deeper shade of gray is impressive. Master bedroom on second floor with decorative high ceiling, sitting area, and large walk in closet. Two more large bedrooms both with walk-in closets, hardwood floors all throughout the upper and lower levels. Double sinks main bath, granite counter tops, bowl sinks stylish faucets & lighting in all bathrooms.
Enjoy your outdoor deck with views of the lake and dock !
Ubicación
35 SWAN LANE, LAKE HOPATCONG, Nueva Jersey 07849, Estados Unidos